Objekt 1 von 5
Nächstes Objekt
Zurück
Zurück
Nächstes Objekt
ZurückEuskirchen: elegante Etagenwohnung mit Balkon und Gartenanteil – in energieeffizienter Bauweise - PV-Anlage
Objekt-Nr.: 31125
Schnellkontakt
Optionen
Optionen
Basisinformationen
Adresse:
53881 Euskirchen
Nordrhein-Westfalen
Nordrhein-Westfalen
Preis:
295.000 €
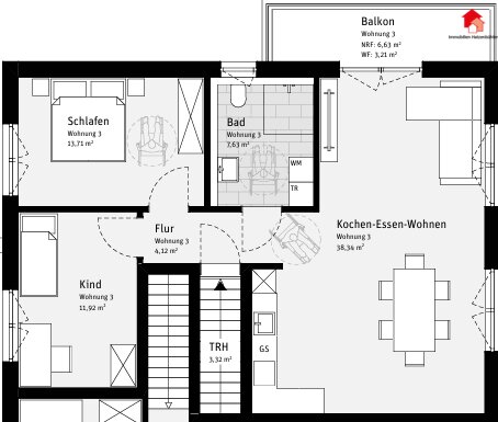
Wohnfläche ca.:
78 m²
Zimmeranzahl:
3
Weitere Informationen
Weitere Informationen
Wohnungstyp:
Etagenwohnung
Provisionspflichtig:
ja
Provision:
3,57 % inkl. der gesetzlichen Mehrwertsteuer
Anzahl Schlafzimmer:
2
Anzahl Badezimmer:
1
Balkon:
1
Qualität der Ausstattung:
gehoben
Baujahr:
2026
Heizung:
Fußboden
Befeuerungsart:
Wärmepumpe
Energietyp:
Neubaustandard
Energieausweistyp:
Verbrauchsausweis
Energieeffizienz-Klasse:
A+
Energieverbrauchs-Kennwert:
25 kWh/(m²*a)
Energieklasse:
A+
Beschreibung
Beschreibung
Objektbeschreibung:
In einem neuentstehenden 3-Familienhaus wird diese moderne Etagenwohnung mit eigenem Balkon und einem ca. 65 m² großen Gartenanteil realisiert. Das Gebäude entsteht in massiver Bauweise und überzeugt durch seine zeitgemäße Architektur sowie einer energieeffizienten Haustechnik.
Die Wohnung verfügt über eine gut durchdachte Raumaufteilung und helle Wohnbereiche mit direktem Zugang in den Garten. Die großzügige Terrasse bietet zusätzlichen Raum zum Entspannen und sorgt für ein angenehmes Wohngefühl.
Das Gebäude wird nach Energieeffizienzklasse A + errichtet und mit einer modernen Luft-Wasser-Wärmepumpe beheizt. In Verbindung mit einer Fußbodenheizung wird ein gleichmäßiges und behagliches Raumklima erreicht – bei gleichzeitig niedrigen Betriebskosten.
Die Wohnung wird Rollstuhlgerecht ausgeführt und einschließlich der fertigen Außenanlagen schlüsselfertig übergeben.
Die Wohnung verfügt über eine gut durchdachte Raumaufteilung und helle Wohnbereiche mit direktem Zugang in den Garten. Die großzügige Terrasse bietet zusätzlichen Raum zum Entspannen und sorgt für ein angenehmes Wohngefühl.
Das Gebäude wird nach Energieeffizienzklasse A + errichtet und mit einer modernen Luft-Wasser-Wärmepumpe beheizt. In Verbindung mit einer Fußbodenheizung wird ein gleichmäßiges und behagliches Raumklima erreicht – bei gleichzeitig niedrigen Betriebskosten.
Die Wohnung wird Rollstuhlgerecht ausgeführt und einschließlich der fertigen Außenanlagen schlüsselfertig übergeben.
Ausstattung:
Bauweise: monolitisch massive Ausführung mit Porenbetonmauerwerk
Energieeffizienz: Energieklasse A + und PV-Anlage
Heizung: moderne Luft-Wasser-Wärmepumpe
Fußbodenheizung: in allen Wohnräumen und individuell regelbar
Fenster: 3-fach-verglaste Kunststofffenster mit Wärmeschutzverglasung
Bodenbeläge: hochwertige Fliesen (nach Bemusterung)
Sanitärausstattung: modernes Bad mit Markenkeramik und Markenarmaturen
Elektro: zeitgemäße Ausstattung inkl. Netzwerk- und Medienanschlüssen
Außenbereich: Balkon mit Gartenanteil, Außenanlage im Kaufpreis enthalten
Stellplatz: Außenstellplatz, direkt am Haus (optional mit E-Ladevorbereitung)
Ausführungsstand: Schlüsselfertig – Maler- und Bodenbelagsarbeiten, außer Bodenbelagsarbeiten in Flur, Bad und Küche sind in Eigenleistung zu erbringen.
Energieeffizienz: Energieklasse A + und PV-Anlage
Heizung: moderne Luft-Wasser-Wärmepumpe
Fußbodenheizung: in allen Wohnräumen und individuell regelbar
Fenster: 3-fach-verglaste Kunststofffenster mit Wärmeschutzverglasung
Bodenbeläge: hochwertige Fliesen (nach Bemusterung)
Sanitärausstattung: modernes Bad mit Markenkeramik und Markenarmaturen
Elektro: zeitgemäße Ausstattung inkl. Netzwerk- und Medienanschlüssen
Außenbereich: Balkon mit Gartenanteil, Außenanlage im Kaufpreis enthalten
Stellplatz: Außenstellplatz, direkt am Haus (optional mit E-Ladevorbereitung)
Ausführungsstand: Schlüsselfertig – Maler- und Bodenbelagsarbeiten, außer Bodenbelagsarbeiten in Flur, Bad und Küche sind in Eigenleistung zu erbringen.
Lage:
In der bezaubernden Gemeinde Rheder am Stadtrand von Euskirchen erwartet Sie eine komfortable Lage mit einem charmanten Mix aus ländlichem Flair und urbaner Anbindung.
Die ausgezeichnete Verkehrsanbindung an die Autobahn A1 ermöglicht eine bequeme Erreichbarkeit der nahegelegenen Städte Köln und Bonn in nur etwa 30 Minuten Fahrzeit. Auch die umliegenden Ortschaften wie Euskirchen und Mechernich sind schnell zu erreichen und bieten eine vielfältige Auswahl an Einkaufsmöglichkeiten, Schulen und Freizeitaktivitäten.
Die ausgezeichnete Verkehrsanbindung an die Autobahn A1 ermöglicht eine bequeme Erreichbarkeit der nahegelegenen Städte Köln und Bonn in nur etwa 30 Minuten Fahrzeit. Auch die umliegenden Ortschaften wie Euskirchen und Mechernich sind schnell zu erreichen und bieten eine vielfältige Auswahl an Einkaufsmöglichkeiten, Schulen und Freizeitaktivitäten.
Provision:
Bei Abschluss eines Kaufvertrages wird eine Vermittlungs-/ Nachweisprovision in Höhe von 3,57 % inklusive 19 % Mehrwertsteuer auf den Kaufpreis vom Käufer fällig.
Anmerkung:
Für die Richtigkeit und Vollständigkeit der Angaben kann keine Gewähr bzw. Haftung übernommen werden. Ein Zwischenverkauf und Irrtümer sind vorbehalten.
AGB:
Wir weisen auf unsere Allgemeinen Geschäftsbedingungen hin. Durch weitere Inanspruchnahme unserer Leistungen erklären Sie die Kenntnis und Ihr Einverständnis.
AUF WUNSCH empfehlen wir Ihnen gute Finanzierungsexperten.
Ihr Ansprechpartner
Zurück






